當初只是單純想把這間小宅,整理得舒適一點,沒想太多。原本配合的設計師中途沒做了,因緣際會下,找到了大旭室內裝修設計。
說真的,一開始我真的只在乎預算能不能在我想要的範圍內,也沒想太多需求,但後來發現,好的設計師,不只是幫你控預算,更會幫你把沒說出口的生活需求都照顧到
。
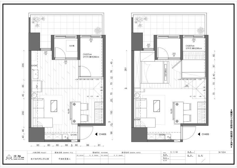
我家是樓中樓,小坪數又挑高,還有三個原本屋主留下來的IKEA櫃子,幾乎是全新的,我捨不得丟。結果他們竟然將尺寸都考量進去且把櫃子完整融進設計裡,動線還比我自己想的更順,連我原本畫的那張「簡易平面圖」,他們都認真參考還加以改善!

我自己都沒想到那麼多,他們總是先想一步。
他們連樓梯都不馬虎!原本的設計師有計算一個高度,結果他們告訴我說這樣太陡了,走起來會很累,他們重新計算了階高與階數,做出一個走起來完全不卡腳的轉折梯,爬上爬下超順~而且有注意到視覺也不能太壓迫,整體設計又穩又美
還記得有一次我忘了繳電費,差點讓工地斷電(真的是我問題
),他們居然還第一時間提醒我、幫我處理好。也會固定傳照片更新進度、幫我追每個細節。

如果對案場的照片有疑慮,他們也會第一時間回覆。有一次有一面牆照片看起來灰灰的,我問他們是不是要重刷,他們跟我說:「別擔心,完工前我們都會再細修。」——那種安心感真的只有遇過爛裝潢才知道多可貴!
另外,還有一個關於地板的小故事讓我印象很深。一開始我想省一樓塑膠地板的錢,但是設計師以專業的角度建議我說:「這樣樓上是新作的塑膠地板,樓下是建商原有的地磚,視覺上會比較不協調,若費用上較不負擔,可以多考慮一下。」我當下還在猶豫,還好最後聽了他的建議,鋪下去後超滿意,真的會默默感謝當初那句話
最讓我感動的是,他們不是只在意「做完這案子」,而是真的想做出「適合我的生活空間」。像我有些家具不想換、有些地方希望能展示收藏、有些空間希望更簡單乾淨,他們都能理解、吸收,然後給我一個比我原本想像更好的版本。

本文為桃園市林口區的團友李先生投稿
★極簡風實名制認證x嚴選優質安心廠商|A1245127